Kistlerhofstraße, München

Als Teil der Machbarkeitsstudie für die neue Mitte von Obersendling in München wurde an der Kistlerhofstraße eine große Fläche geplant. Entgegen der Tendenz, vor Hochhäusern in Stadtgebieten zurückzuschrecken wurde hier eine vertikale Hochverdichtung von unterschiedlichen Programmen explizit untersucht.

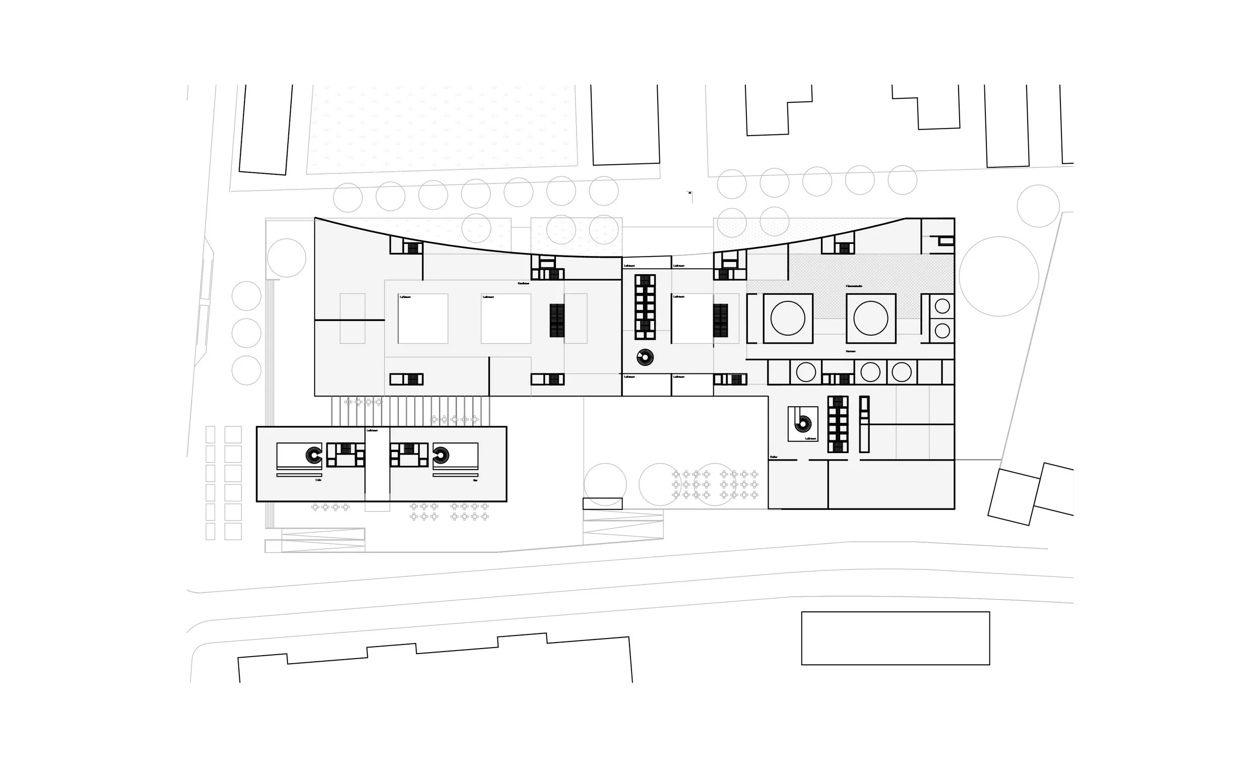
Das Ensemble setzt sich aus drei Hochpunkten zusammen, einem frei umflossenen Quader auf dem Podest des Platzes sowie zwei Hochpunkten auf dem viergeschossigen Sockelbau. Der Platz öffnet sich über einige Stufen zur Straße hin, von wo aus der ÖPNV diesen anbindet. Neben der von einer Pergola überdachten Gasse zwischen Quader und Sockel führt die Haupterschließung durch den Sockelbau hindurch zu einem rückseitigen Parkbereich.

Die Neue Mitte Obersendling soll für alle Bewohner*innen einen Mehrwert bieten, so werden Wohnfunktionen in den Punkten mit Büroflächen im Quader sowie Dienstleistungs- Freizeit- und Versorgungsnutzungen im Sockel kombiniert. Im Erdgeschoss ordnen sich Cafés und Restaurants um den Platz herum an, die tiefen Räume des Sockels werden von einem Vollsortimenter und einem Hamam bespielt. An der Schnittstelle der Punkthochhäuser zum intensiv begrünten Dach komplettiert eine Kindertagesstätte das Programm. Das Portfolio der Wohntypen reicht von Kleinen Single-Wohnungen mit 25qm über Familienwohnungen mit 120 qm bis zu höherpreisigen Maisonetten im obersten Bereich mit 165 qm.

Zurück
Zurück

Haus des Gastes, Amrum

Weiter
Weiter

MdbG, Regensburg