Blaue Moschee

Die Situation vieler Moscheen und islamischer Gemeindehäuser in Deutschland ist eines Gotteshauses unwürdig. Oftmals in Gewerbegebieten und Stadtrandzonen marginalisiert ist es de facto unmöglich, eine identitätsstiftende architektonische Sprache zu entwickeln.

Auch die blaue Moschee liegt in einer Randzone nahe der Fernzugschienen in einer ehemaligen Fabrikhalle. Die durchaus robuste Substanz wird nun aber der wachsenden Gemeinde nicht mehr gerecht, weswegen unter ökologischen und ökonomischen Gesichtspunkten die Strategie des Weiterbauens in den Fokus gerückt ist.

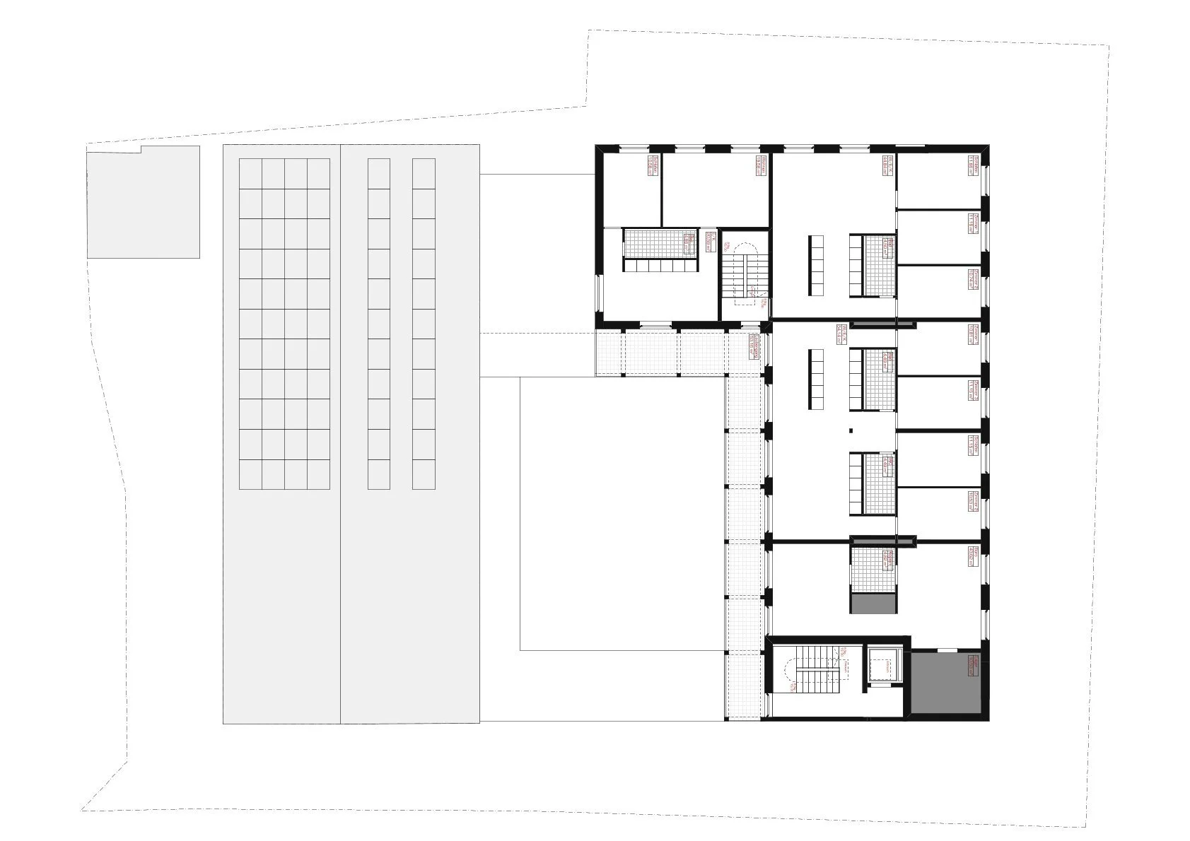
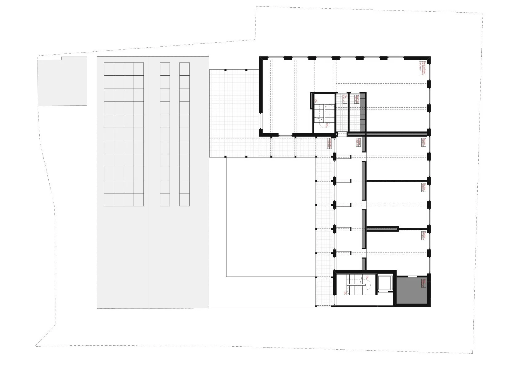
Die typologischen Grundbestandteile einer historischen Moschee wie das Portal, der Sahn (Zentraler Hof), die Riwaq (Wandelhalle) und der Abdestbrunnen sind die gestaltgebenden Elemente des neuen Ensembles. Betreten wird die Moschee durch das gedeckte Portal, welches einige Stufen nach oben auf den im Hochparterre gelegenen Sahn führt. Der Hof schließt ebenengleich an den bestehenden Gebetsraum der Moschee an, gefiltert durch eine vorgeblendete Stützenreihe. An den anderen Seiten schließt der Neubau mit den Hauptportalen, dem Teeraum sowie dem Gebetsraum der Damen an. In den Obergeschossen finden sich zudem Bibliothek, Seminar- und Veranstaltungsräume sowie Wohnungen für Imam, Imamen und Hausmeister.

Zurück
Zurück

Skybar

Weiter
Weiter

Cafe Central